飯田橋車站 1LDK 201
¥192,000 + ¥18,000
(管理費)
東京都新宿區筱川町
JR中央本線, 東京地鐵東西線, 東京地鐵有樂町線, 東京地鐵南北線, 都營地鐵大江戶線, JR中央、總武線各站停車飯田橋車站 徒歩7分鐘
PETS OK!
物件資訊
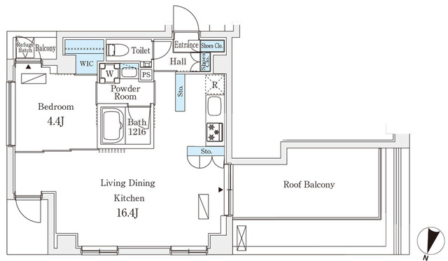
格局
1LDK
面積
34.09m2
建築年份
2024
樓層
2F /
7F
房屋朝向
西方
起租日期
請詢問仲介公司
類型
公寓
結構
重型鋼構
契約種類
普通租賃合約
2年份
交易形式
屋主自租
特色
其他有空室的物件
平面圖
樓層
租金
管理費
管理費
格局
面積
面積
物件資訊




















0345792103