木場車站 1DK 537
¥125,000 + ¥20,000
(管理費)
東京都江東區鹽濱二丁目
東京地鐵東西線木場車站 徒歩9分鐘
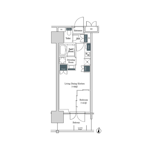
物件資訊
格局
1DK
面積
26.52m2
建築年份
2026
樓層
5F /
18F
房屋朝向
北方
起租日期
請詢問仲介公司
類型
公寓
結構
重型鋼構
契約種類
定期租賃合約
2年份
交易形式
房屋仲介
特色
其他有空室的物件
平面圖
樓層
租金
管理費
管理費
格局
面積
面積
物件資訊































0345792103