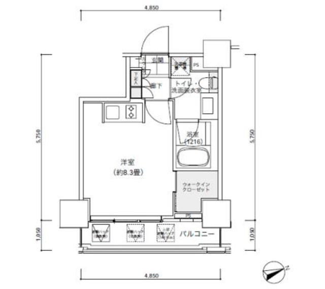
御成門車站 1K 1007
¥207,000 + ¥0
(管理費)
東京都港區西新橋三丁目
東京地鐵日比谷線神谷町車站 徒歩7分鐘
都營地鐵三田線御成門車站 徒歩6分鐘
物件資訊
格局
1K
面積
35.3m2
建築年份
2007
樓層
10F /
31F
房屋朝向
東方
起租日期
請詢問仲介公司
類型
公寓
結構
重型鋼構
契約種類
普通租賃合約
2年份
交易形式
房屋仲介
特色
其他有空室的物件
平面圖
樓層
租金
管理費
管理費
格局
面積
面積
物件資訊

































0345792103