니시스가모역 1R 402
¥105,000 + ¥10,000
(관리비)
도쿄도기타구타키노가와 롯쵸메
JR 사이쿄선이타바시역 도보 8분
도에이 치카테츠 미타선니시스가모역 도보 5분
토덴 아라카와선신코신즈카역 도보 10분
물건 상세
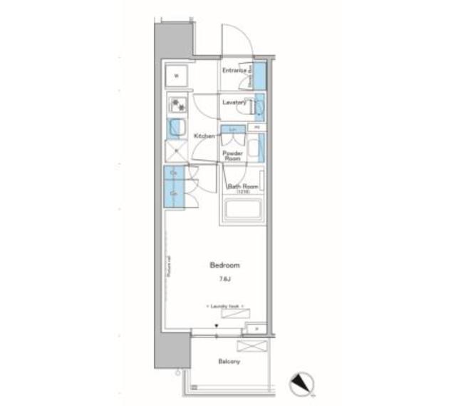
방 배치
1R
면적
25.6m2
건축 연수
2015
층수
4F /
13F
주요 채광면
북동
입주 시기
상담 필요
건물구분
아파트/맨션
구조
철근 콘크리트
계약 종류
보통임대차계약
2년
거래 형태
중개
특징
다른 공실물건
방 배치도
층수
월세
관리비
관리비
방 배치
전유 면적
전유 면적
자세히 보기





























0345792103