카치도키역 1DK 1412
¥221,000 + ¥10,000
(관리비)
도쿄도주오구가쓰도키 롯초메
도에이 치카테츠 오오에도선카치도키역 도보 6분
물건 상세
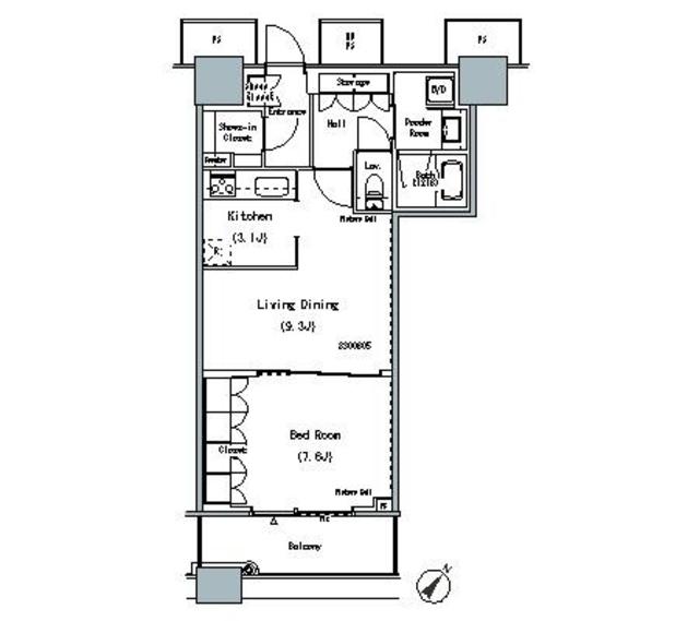
방 배치
1DK
면적
46.38m2
건축 연수
2008
층수
14F /
58F
주요 채광면
남서
입주 시기
상담 필요
건물구분
아파트/맨션
구조
철근 콘크리트
계약 종류
보통임대차계약
2년
거래 형태
중개
특징
다른 공실물건
방 배치도
층수
월세
관리비
관리비
방 배치
전유 면적
전유 면적
자세히 보기










































0345792103