오쿠보역 1LDK 426
¥232,000 + ¥18,000
(관리비)
도쿄도신주쿠구모모토마치 산쵸메
JR 츄오본선, JR 츄오・소부선오쿠보역 도보 6분
물건 상세
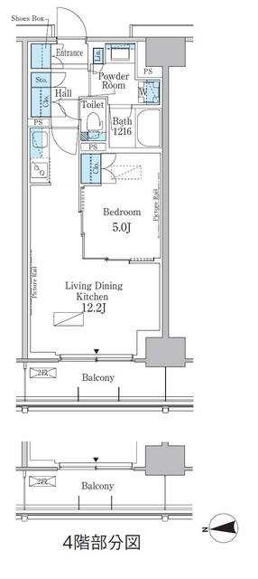
방 배치
1LDK
면적
42.14m2
건축 연수
2024
층수
4F /
7F
주요 채광면
서
입주 시기
상담 필요
건물구분
아파트/맨션
구조
철근 콘크리트
계약 종류
보통임대차계약
2년
거래 형태
중개














0345792103