오사키히로코지역 1LDK 4A
¥238,000 + ¥12,000
(관리비)
도쿄도시나가와구니시고탄다 핫초메
JR 야마노테선, 토큐 이케가미선, 도에이 치카테츠 아사쿠사선고탄다역 도보 9분
토큐 이케가미선오사키히로코지역 도보 5분
도에이 치카테츠 아사쿠사선토고시역 도보 10분
Nearby parks schools and nursery. Nearby restaurants shops and convenient stores. Quiet neighborhood. Residential area. Accessible from numerous train stations and/or train lines.
물건 상세
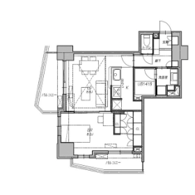
방 배치
1LDK
면적
44.97m2
건축 연수
2006
층수
4F /
15F
주요 채광면
북서
입주 시기
즉시
건물구분
아파트/맨션
구조
철근 콘크리트
계약 종류
보통임대차계약
2년
거래 형태
중개
특징
다른 공실물건
방 배치도
층수
월세
관리비
관리비
방 배치
전유 면적
전유 면적
자세히 보기






















0357313159