텐노즈아일역 2LDK 3I
¥279,000 + ¥20,000
(관리비)
도쿄도시나가와구히가시시나가와 산쵸메
도쿄 모노레일 하네다공항선, 도쿄 린카이선텐노즈아일역 도보 7분
케이큐본선신반바역 도보 13분
Nearby parks schools and nursery. Nearby restaurants shops and convenient stores. Quiet neighborhood. Residential area. Accessible from numerous train stations and/or train lines.
물건 상세
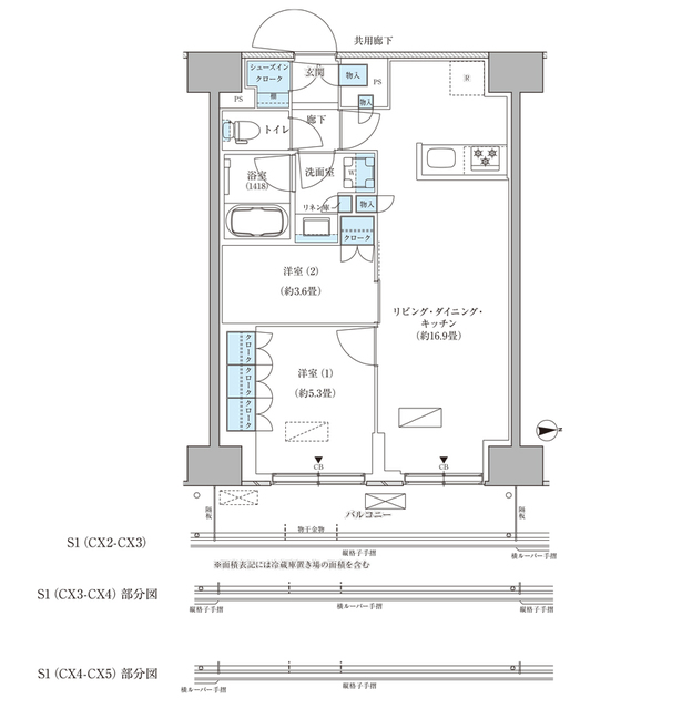
방 배치
2LDK
면적
60.53m2
건축 연수
2025
층수
3F /
14F
주요 채광면
남
입주 시기
즉시
건물구분
아파트/맨션
구조
철근 콘크리트
계약 종류
정기임대계약
2년
거래 형태
중개
특징
다른 공실물건
방 배치도
층수
월세
관리비
관리비
방 배치
전유 면적
전유 면적
자세히 보기



























0357313159