시노자키역 1LDK 5C
도쿄도에도가와구카미시노자키 욘쵸메
도에이 치카테츠 신주쿠선시노자키역 도보 4분
Nearby parks schools and nursery. Nearby restaurants shops and convenient stores. Quiet neighborhood. Residential area.
물건 상세
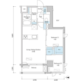
방 배치
1LDK
면적
34.45m2
건축 연수
2024
층수
5F /
9F
주요 채광면
서
입주 시기
즉시
건물구분
아파트/맨션
구조
철근 콘크리트
계약 종류
보통임대차계약
2년
거래 형태
중개
특징
다른 공실물건
방 배치도
층수
월세
관리비
관리비
방 배치
전유 면적
전유 면적
자세히 보기
¥192,000
¥10,0002LDK
50.22m2





























0357313159