토고시긴자역 1K 4E
¥119,000 + ¥10,000
(관리비)
도쿄도시나가와구히라츠카 니쵸메
토큐 이케가미선토고시긴자역 도보 4분
도에이 치카테츠 아사쿠사선토고시역 도보 6분
물건 상세
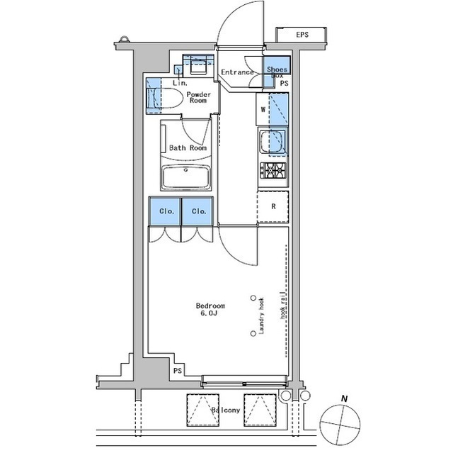
방 배치
1K
면적
20.61m2
건축 연수
2021
층수
4F /
6F
주요 채광면
남
입주 시기
상담 필요
건물구분
아파트/맨션
구조
철근 콘크리트
계약 종류
보통임대차계약
2년
거래 형태
중개
























0357313159