Monzennakacho Sta. 1DK 603
Eitai 2, Koto-ku, Tokyo
Tokyo Metro Tozai Line, Toei Oedo Line Monzennakacho Sta. 6 min by walk
JR Keiyo Line Ecchujima Sta. 6 min by walk
Détails de la propriété
Agencement
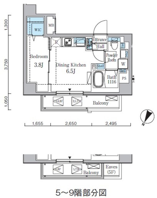
1DK
Taille
27.25m2
Année de construction
2021
Étage
6F /
5F
Orientation de la fenêtre
Nord Ouest
Disponible à partir de
Veuillez demander à l'agent
Type
Appartement
Structure
Acier lourd
Type de contrat
Bail ordinaire
2 Years
Type de transaction
Agence
Fonctionnalités
Autres appartements disponibles
plan
Étage
Louer
Frais de maintenance
Frais de maintenance
Plan
Taille
Taille
Détails
¥128,000
¥10,0001DK
25.5m2
















0357313159