Wakamatsukawada Sta. 2DK 502
¥450,188 + ¥0
(Maintenance Fee)
Kawadacho, Shinjuku-ku, Tokyo
Toei Oedo Line Wakamatsukawada Sta. 6 min by walk
Toei Shinjuku Line Akebonobashi Sta. 7 min by walk
Detalles de la propiedad
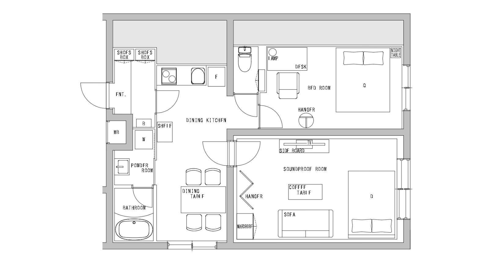
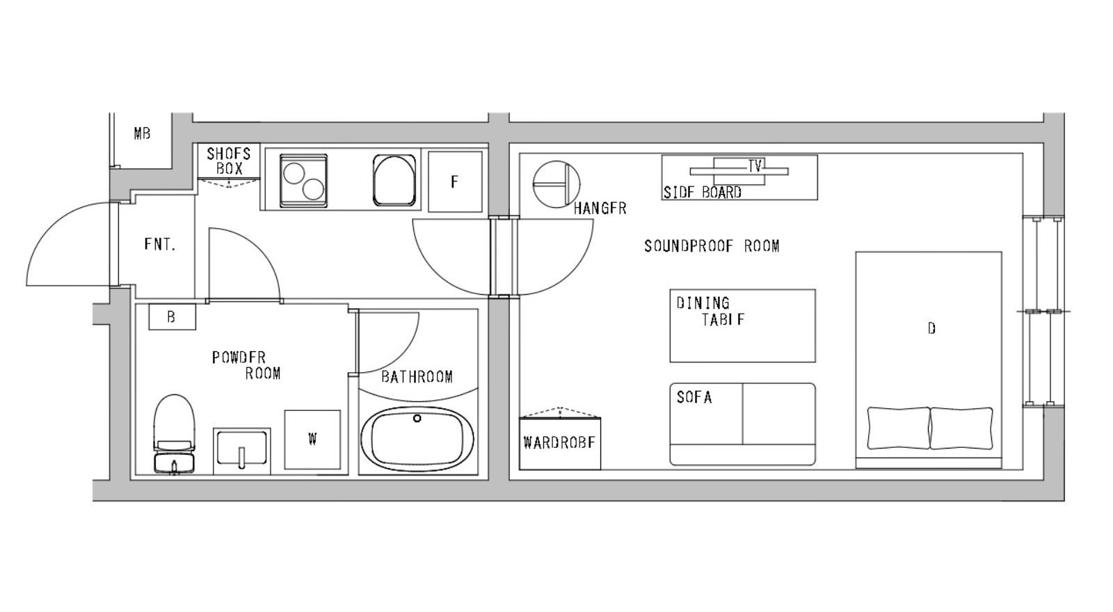
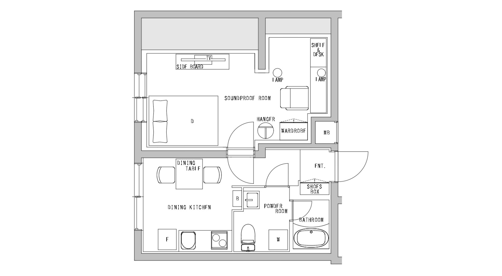
Plano
2DK
Tamaño
52.9m2
Año de construcción
2024
Piso
5F /
5F
Dirección de la ventana
Sur oeste
Disponible desde
Por favor pregunte al agente
Tipo
Apartamento Mensual
Estructura
Concreto Armado
tipo de contrato
Arrendamiento a plazo fijo
1 month
tipo de transacción
Dueño
Características
Otros apartamentos disponibles
Planta baja
Piso
Alquilar
Tarifa de mantenimiento
Tarifa de mantenimiento
Disposición
Tamaño
Tamaño
Detalles























09097098533