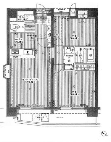
Shinsen Sta. 2LDK 1303243-10A
Shinsencho, Shibuya-ku, Tokyo
Keio Inokashira Line Shinsen Sta. 4 min by walk
JR Shonan Shinjuku Line, JR Saikyo Line, JR Yamanote Line, Keio Inokashira Line, Tokyu Toyoko Line, Tokyu Denen-toshi Line, Tokyo Metro Ginza Line, Tokyo Metro Hanzomon Line, Tokyo Metro Fukutoshin Line Shibuya Sta. 13 min by walk
Keio Inokashira Line Komaba-tōdaimae Sta. 12 min by walk

























0357313159