Togoshi Sta. 1LDK 4A
¥152,000 + ¥20,000
(Maintenance Fee)
Hiratsuka 1, Shinagawa-ku, Tokyo
Toei Asakusa Line Togoshi Sta. 1 min by walk
Tokyu Ikegami Line Togoshiginza Sta. 3 min by walk
Detalles de la propiedad
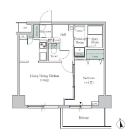
Plano
1LDK
Tamaño
32.95m2
Año de construcción
2002
Piso
4F /
14F
Dirección de la ventana
Este
Disponible desde
Ahora
Tipo
Departamento
Estructura
Acero pesado
tipo de contrato
Arrendamiento Ordinario
2 Years
tipo de transacción
Agencia






















0357313159