Ayase Sta. 1LDK 7
¥127,000 + ¥12,000
(Maintenance Fee)
Ayase 3, Adachi-ku, Tokyo
JR Joban Line, Tokyo Metro Chiyoda Line, Tokyo Metro Chiyoda Line (Ayase-Kita Ayase) Ayase Sta. 3 min by walk
Detalles de la propiedad
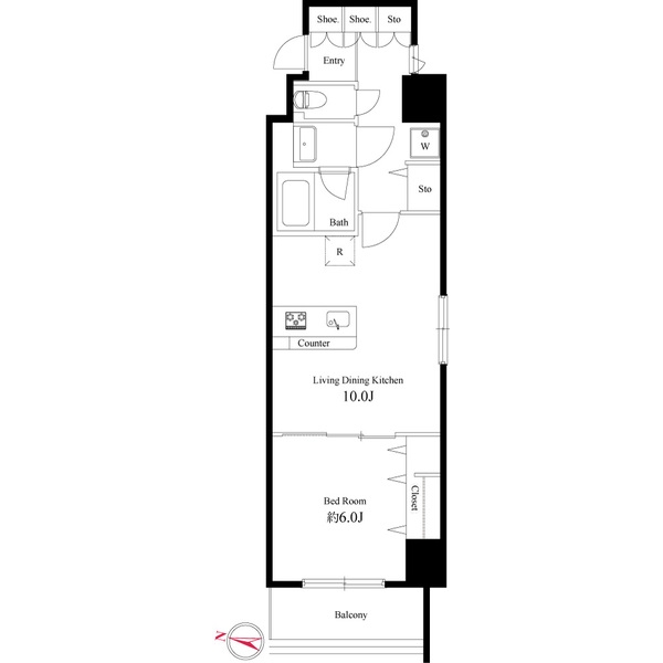
Plano
1LDK
Tamaño
41.83m2
Año de construcción
2015
Piso
7F /
8F
Dirección de la ventana
Desconocido
Disponible desde
Por favor pregunte al agente
Tipo
Departamento
Estructura
Acero pesado
tipo de contrato
Arrendamiento Ordinario
2 Years
tipo de transacción
Dueño
Características
Otros apartamentos disponibles
Planta baja
Piso
Alquilar
Tarifa de mantenimiento
Tarifa de mantenimiento
Disposición
Tamaño
Tamaño
Detalles
¥128,000
¥13,0001LDK
47.63m2¥147,000
¥15,0001LDK
43.6m2¥152,000
¥15,0001LDK
41.83m2




















0345792103