Omori Sta. 1K 1103
Minamioi 3, Shinagawa-ku, Tokyo
JR Keihin Tohoku Line Omori Sta. 7 min by walk
Detalles de la propiedad
Características
Otros apartamentos disponibles
Tarifa de mantenimiento
Tamaño
¥100,000
¥9,0001K
21.41m2¥108,000
¥9,0001K
21.36m2¥111,000
¥9,0001K
21.36m2¥111,000
¥9,0001K
21.63m2¥109,000
¥9,0001K
21.36m2¥109,000
¥9,0001K
21.63m2¥109,000
¥9,0001K
21.63m2¥207,000
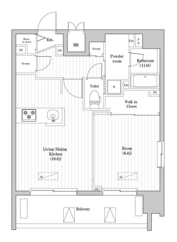
¥9,0001LDK
42.86m2¥109,000
¥9,0001K
21.63m2¥100,500
¥9,0001K
20.94m2¥105,000
¥9,0001K
20.94m2¥106,000
¥9,0001K
20.94m2¥100,000
¥9,0001K
20.94m2¥211,000
¥9,0001LDK
42.83m2¥103,500
¥13,0001K
20.94m2¥106,000
¥13,0001K
21.63m2¥104,500
¥13,0001K
21.36m2¥106,500
¥13,0001K
20.94m2¥222,000
¥13,0001LDK
42.86m2¥103,500
¥13,0001K
21.41m2¥109,000
¥13,0001K
20.94m2¥129,000
¥10,0001K
25.95m2




























0345792103